

















Brand:
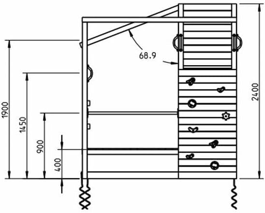
Il parco Crossfit è ricco di strutture per l'arrampicata ed è ottimo per i bambini più grandi. Il modo migliore per esercitarsi è giocare. Il box per bambini Crossfit può essere incluso con molti accessori come l'altalena, il modulo Challenger e puoi mettere un anello da basket, una barra dei pompieri al posto della rampa dello scivolo e molto altro ancora. Il parco Crossfit ha due archi collegati da una piattaforma. Dispone di una parete da arrampicata che arriva fino alla piattaforma superiore alta 150 cm. Si può salire sulla piattaforma tramite una rete da arrampicata e scendere tramite lo scivolo. Sugli altri lati sono presenti due barre per realizzare carretti, una a 90 cm e l'altra a 145 cm di altezza ed infine una scala a pioli sopra una piattaforma a 40 cm di altezza. La scala delle scimmie ha un'altezza di 200 cm dalla piattaforma. Il box per bambini Crossfit ha le seguenti dimensioni: 4,58 m (L) x 2,04 m (L) x 2,40 m (A) L'altezza della piattaforma dello scivolo è di 1,50 m. La rampa dello scivolo è lunga 3 m. Deve lasciare 2 metri intorno alla zona di sicurezza. La guida di scorrimento è realizzata in polietilene ad alta densità che resiste bene alla corrosione ed è quindi adatta alle intemperie. Sulla rampa è possibile collegare un tubo in estate per far scendere l'acqua attraverso la rampa. Si tratta quindi di un connubio che offre molteplici possibilità di intrattenimento per i bambini. Età consigliata: dai 3 ai 12 anni
EAN:
Categorie
Arrampicate e altalene
| Disponibilité des pièces détachées | Information indisponible sur les pièces détachées |
| Marque | MASGAMES |
| Matériau | Bois |
| Numéro de modèle | MA802901 |
